
Architecture can be deeply impactful, no matter the scale. Small alterations to a plan, paired with meaningful extensions, can create a remarkably big impact.
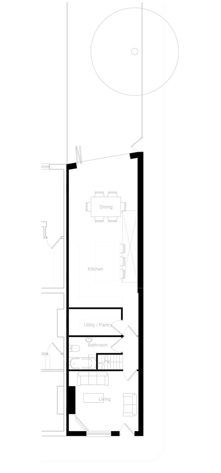
This modest end-terrace home suffered from a dated and inefficient layout that no longer supported the needs of a growing family. After sitting down with the clients, it became clear that the heart of the project was creating a space where they could come together, share moments, and grow as a family. With limited internal space, we focused on strengthening the connection to the garden allowing the home to feel more generous, more open, and more alive.
By drawing deep natural light into the plan, the new space feels larger than its footprint, while curated views of the garden and open sky provide subtle psychological benefits and a calming sense of retreat. The extension’s form intentionally shields itself from the harsh southern sun, maintaining comfortable temperatures throughout the year without compromising on brightness.
A blend of traditional red brick and bold, modern metal-seamed cladding grounds the extension in its historic context while giving it a contemporary identity, one that feels both rooted and refreshed.
The Grange
Staffordshire










