
Howard Close was brought to us for one main reason: potential.
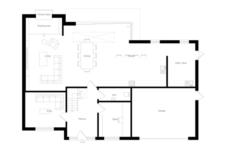
This 1970s property sits in an elevated position with spectacular rural views, yet the existing layout offered only fleeting glimpses through small, poorly placed windows. The clients envisioned a space worthy of its setting somewhere that could both impress and embrace, a place for entertaining, socialising, quiet moments, and, of course, fully experiencing the landscape beyond.
Understanding what truly matters to our clients is central to how we design. Here, that meant crafting a space that not only frames the views but deepens the connection to them. A feature bay seating area gently projects you into the garden, offering a peaceful spot for reflection and solitude. Corner glazing opens seamlessly onto the exterior with a continuous flush floor, blurring boundaries and allowing the garden to become an extension of the home. Curated landscaping complements the interior, ensuring harmony and flow throughout.
One of the project’s key challenges was orientation. To preserve the views, the extension needed to remain south-facing an approach that often risks overheating in warmer months. By embedding simple but effective sustainable design strategies early on, such as deep canopy overhangs, an insulating green roof, and high-thermal-mass flooring, the space naturally regulates itself throughout the year. These fundamental yet powerful passive principles significantly enhance comfort and energy performance when considered at the outset.
Externally, the bold architecture expresses a clear function-over-form approach while still achieving a striking aesthetic. When working with such breathtaking scenery, the instinct can be to fully open an entire wall of glazing. Instead, by thoughtfully curating views and creating moments of reveal, the landscape becomes even more compelling, inviting you to appreciate it in new and meaningful ways.
Howard Close
Derbyshire














